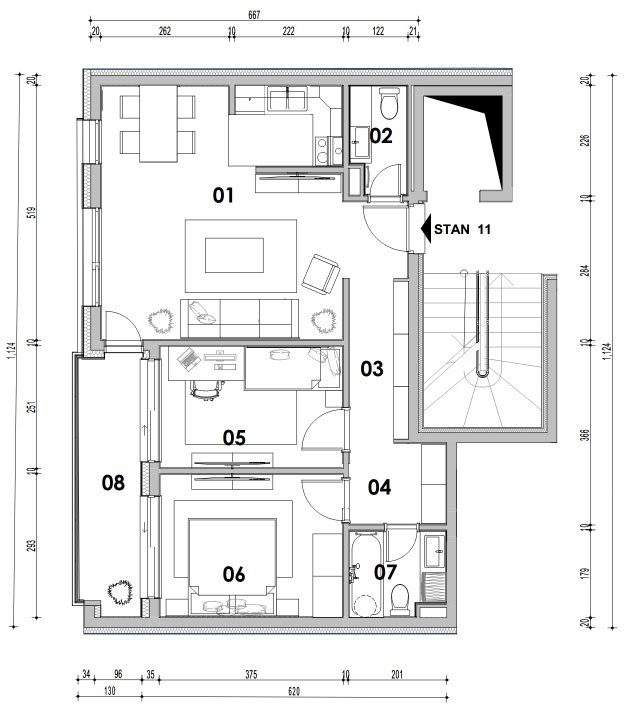
STAN 11 - TROSOBAN / ČETVRTI SPRAT

Stan po vašoj meri

Trosoban stan na četvrtom spratu ukupne ovršine od 68.94 m2 sa terasom.

  • Ukupna površina: 68.94 m2
  • Sobe: x3
  • Kupatilo: x1
  • Terasa: x1
STAN 11 - TROSOBAN / ČETVRTI SPRAT
01 Dnevni boravak 26.42 m2
02 WC 2.44 m2
03 HODNIK 1.83 m2
04 HODNIK/PLAKAR 7.33 m2
05 Spavaća soba 1 8.73 m2
06 Spavaća soba 2 11.18 m2
07 KUPATILO 3.38 m2
08 Terasa 7.64 m2
Ukupna površina 68.94 m2

Zakažite posetu

Zakažite termin i konsultaciju sa našim agentom,
možda je neki od stanova baš za vas!

Top