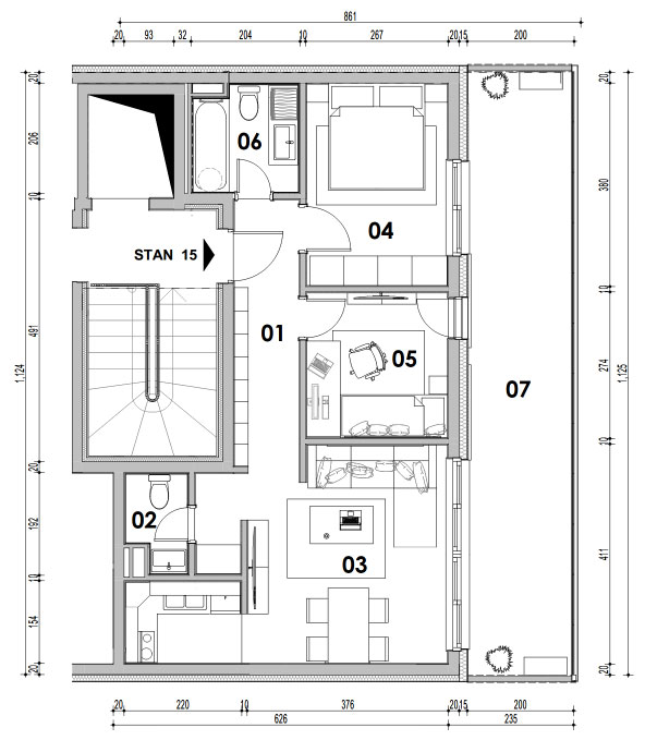
STAN 15 - TROSOBAN / poslednji sprat

Stan po vašoj meri

Trosoban stan na poslednjem spratu ukupne površine od 71.59 m2 sa terasom.

  • Ukupna površina: 71.59 m2
  • Sobe: x3
  • Hodnik: x1
  • Kupatilo: x1
  • WC: x1
  • Terasa: x1
STAN 15 - TROSOBAN / POSLEDNJI SPRAT
01 HODNIK 6.00 m2
02 WC 2.57 m2
03 Dnevni boravak 18.46 m2
04 SPAVAĆA SOBA 1 11.04 m2
05 SPAVAĆA SOBA 2 8.04 m2
06 KUPATILO 4.08 m2
07 Terasa 21.40 m2
Ukupna površina 71.59 m2

Zakažite posetu

Zakažite termin i konsultaciju sa našim agentom,
možda je neki od stanova baš za vas!

Top