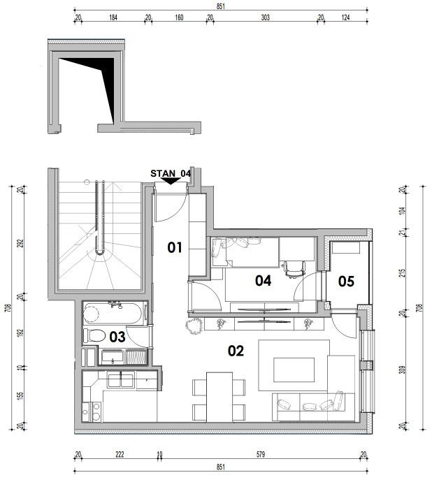
STAN 7 - DVOSOBAN / DRUGI SPRAT

Stan po vašoj meri

Dvosoban stan na drugom spratu ukupne površine od 39.77 m2 sa terasom.

  • Ukupna površina: 39.77 m2
  • Sobe: x2
  • Kupatilo: x1
  • Terasa: x1
STAN 7 - DVOSOBAN / DRUGI SPRAT
01 HODNIK 4.27 m2
02 Dnevni boravak 22.00 m2
03 Kupatilo 3.43 m2
04 Spavaća soba 7.97 m2
05 Terasa 2.10 m2
Ukupna površina 39.77 m2

Zakažite posetu

Zakažite termin i konsultaciju sa našim agentom,
možda je neki od stanova baš za vas!

Top